Enota E - samostojna hiša
| Neto tloris | Razpoložljivost | Cena | Ogled |
|---|---|---|---|
| 141㎡ | še ni v prodaji | - | Kontakt |
Edinstvena enota v Soseski 5ka - Vaš sanjski dom, zgrajen s srcem
Dobrodošli v vašem novem domu, kjer se sodobna arhitektura srečuje z vrhunsko kakovostjo. Končna enota v Soseski 5ka izstopa med vsemi z dodatnim zemljiščem in še dodatno zasebnostjo, vse v objemu gozda.
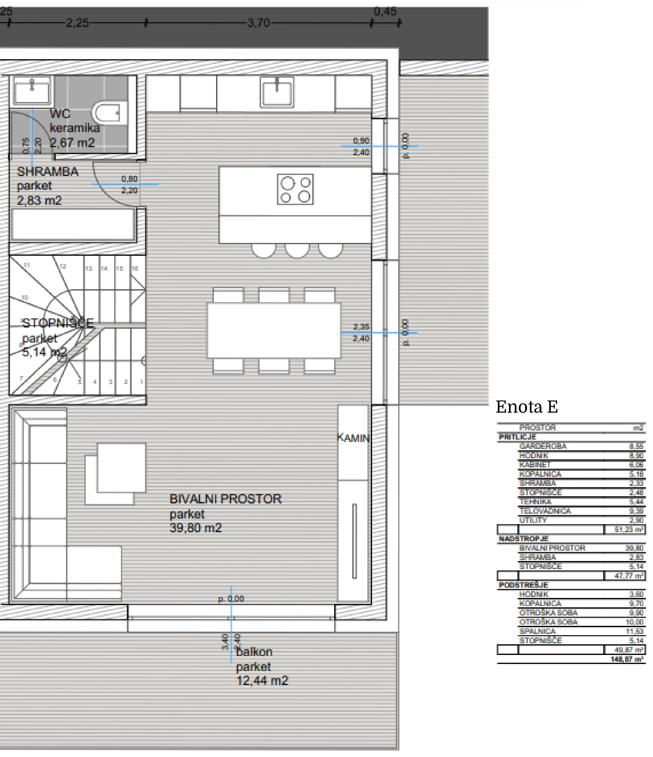
Tloris
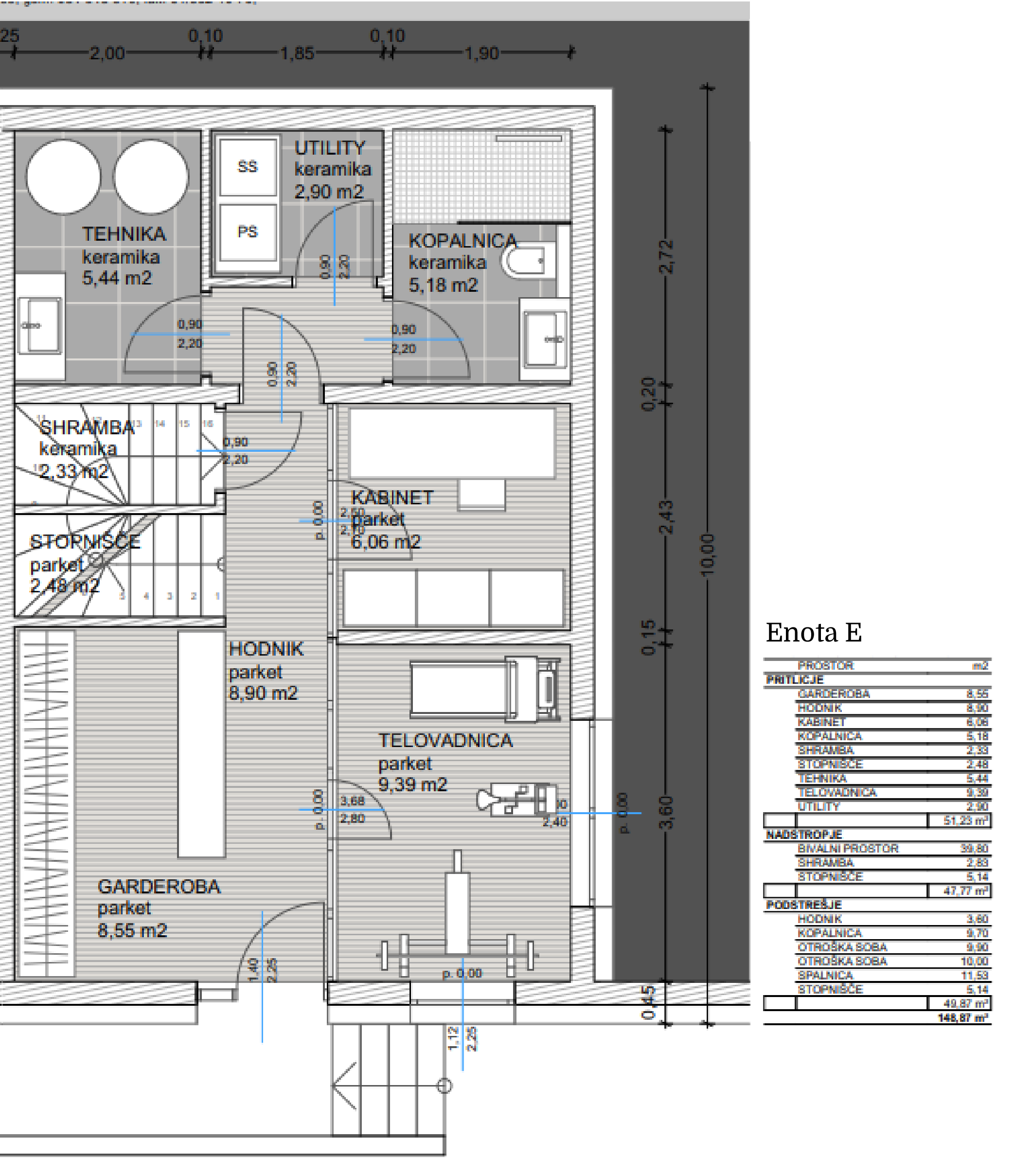
Pritličje: Hodnik in garderoba, kabinet in telovadnica. V zadnjem delu tudi tehnični prostor, utility in kopalnica.
Nadstropje: Kuhinja s shrambo in jedilnico, dnevni prostor s kaminom ter toaleta. Izhod na teraso zadaj in na balkon s pogledom naprej.
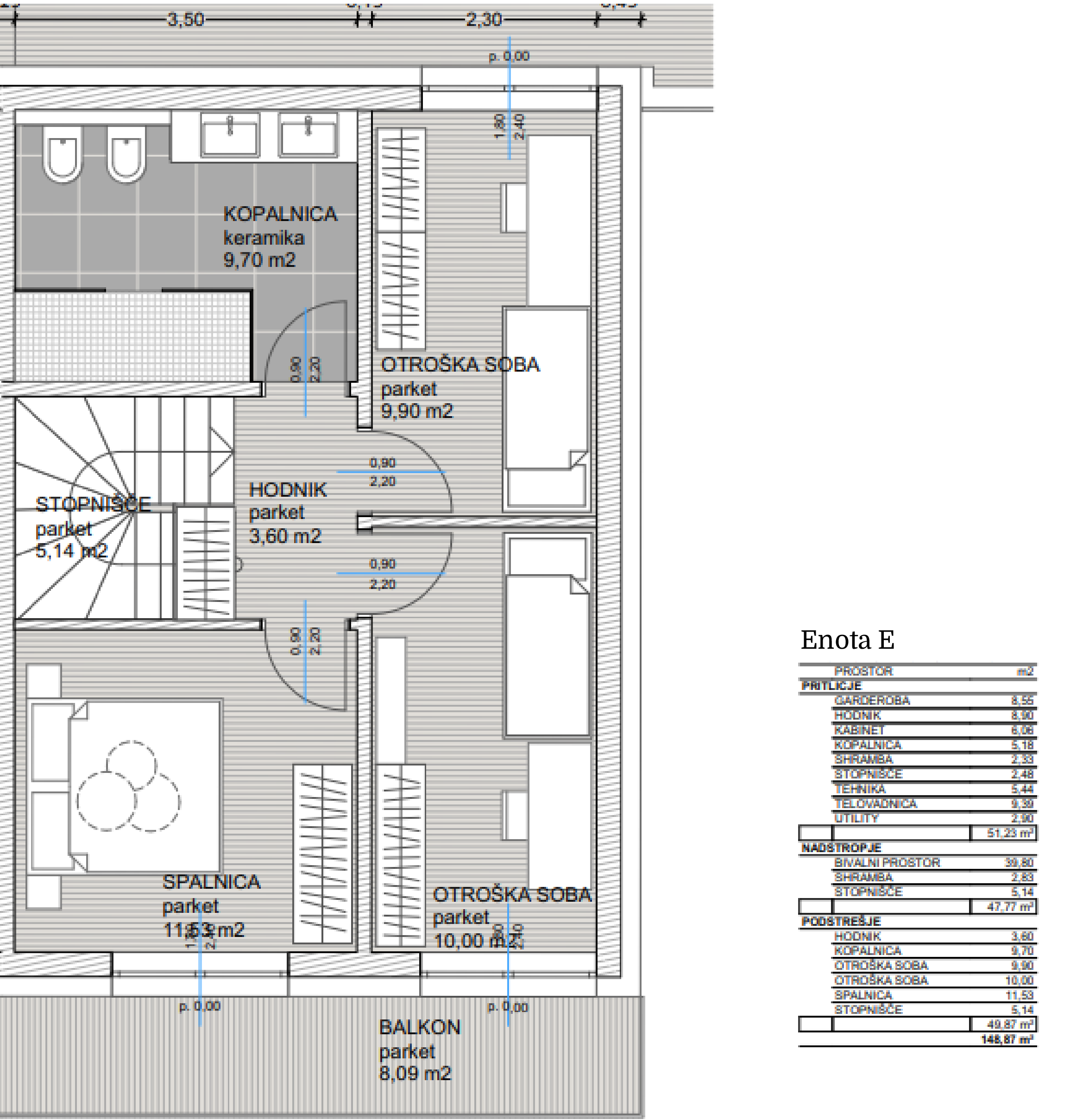
Mansarda: Spalnica, 2 otroški sobi in kopalnica. Iz spalnice in sobe izhod na balkon s pogledom naprej.
Izjemen bivalni prostor
V tej enoti boste s svojo družino uživali v dodatni pripadajoči parceli, s tem pa tudi v dodatni zasebnosti. V nadstropju se razprostira odprt bivalni prostor z elegantnim kaminom, ki ustvarja prijetno vzdušje. Kuhinja in jedilnica sta povezani in imata neposreden izhod na čudovito zeleno teraso, idealno za sprostitev ali družinska druženja. Prava izbira za aktivno družino, z domom v objemu narave.
V mansardi boste našli dovolj prostora za vse, z dodatnim balkonom z izhodom iz spalnice in ene sobe.
Energetska učinkovitost in vrhunski materiali
Celotna soseska izstopa po svoji energetski učinkovitosti, zgrajena je kot nizkoenergijska hiša, kar zagotavlja nizke obratovalne stroške in prijaznost do okolja. Vgrajeni so samo najboljši kakovostni materiali, kar zagotavlja trajnost in udobje. Enota je pripravljena tudi na postavitev sončne elektrarne, in električno polnilnico za avto za dodatno naravnanost naprej.
Razlika, ki šteje
Ta enota se razlikuje od ostalih v Soseski 5ka po svoji končni legi. Njena pozicija vam daje še dodatno zasebnost pri druženju in preživljanju časa z družino.
Faza gradnje
Enota se trenutno bliža končni fazi gradnje, končana so že vsa večja gradbena dela.
Kontaktirajte nas z vprašanji Pokličite za ogled