Enota B - samostojna hiša
| Neto tloris | Razpoložljivost | Cena | Ogled |
|---|---|---|---|
| 141㎡ | Prodano | Kontakt |
Edinstvena enota v Soseski 5ka - Vaš sanjski dom, zgrajen s srcem
Dobrodošli v vašem novem domu, kjer se sodobna arhitektura srečuje z vrhunsko kakovostjo.
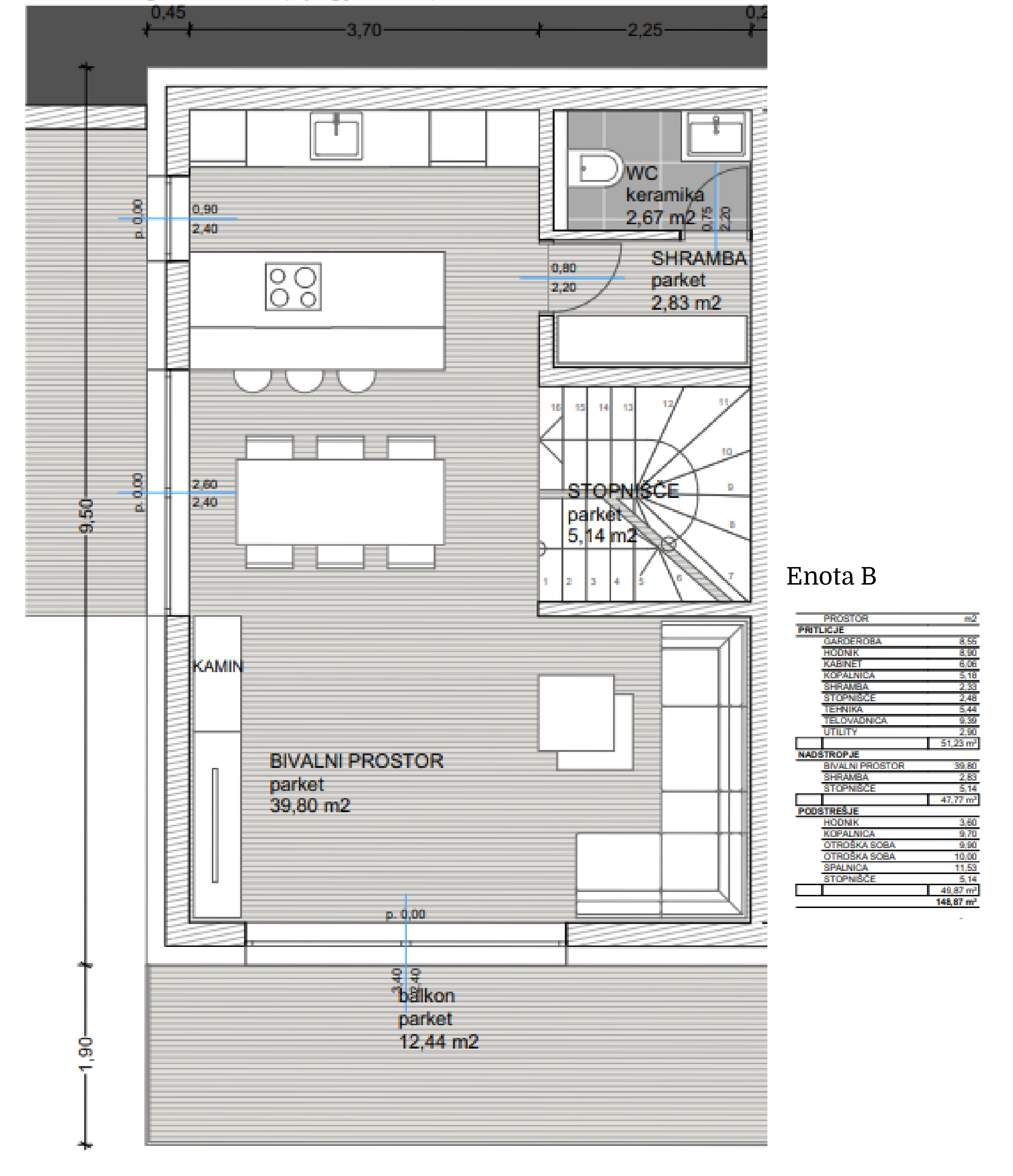
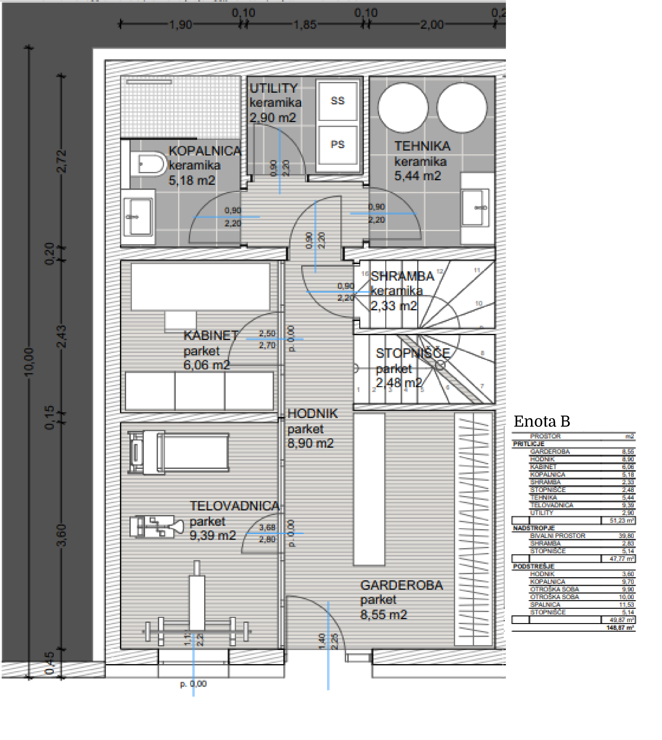
Tloris
Pritličje: Hodnik in garderoba, kabinet in telovadnica. V zadnjem delu tudi tehnični prostor, utility in kopalnica
Nadstropje: Kuhinja s shrambo in jedilnico, dnevni prostor s kaminom ter toaleta. Izhod na teraso zadaj in na balkon s pogledom naprej.
Mansarda: Spalnica, 2 otroški sobi in kopalnica. Iz spalnice in sobe izhod na balkon s pogledom naprej.
Izjemen bivalni prostor
V tej enoti se razprostira odprt bivalni prostor z elegantnim kaminom, ki ustvarja prijetno vzdušje. Kuhinja in jedilnica sta povezani in imata neposreden izhod na čudovito zeleno teraso, idealno za sprostitev ali družinska druženja. Prava izbira za aktivno družino, z domom v objemu narave.
V mansardi boste našli dovolj prostora za vse, z balkonom z izhodom iz spalnice in sobe.
Energetska učinkovitost in vrhunski materiali
Celotna soseska izstopa po svoji energetski učinkovitosti, zgrajena je kot nizkoenergijska hiša, kar zagotavlja nizke obratovalne stroške in prijaznost do okolja. Vgrajeni so samo najboljši kakovostni materiali, kar zagotavlja trajnost in udobje. Enota je pripravljena tudi na postavitev sončne elektrarne, in električno polnilnico za avto za dodatno naravnanost naprej.
Faza gradnje
Enota se trenutno bliža končni fazi gradnje, končana so že vsa večja gradbena dela.
Kontaktirajte nas z vprašanji Pokličite za ogled